Apartament, ul. Piłsudskiego
Piłsudskiego, Stargard, zachodniopomorskie
- 147 200 zł
- 30,98 m²
- 4 751,45 zł/m²
Apartament, ul. Piłsudskiego
Piłsudskiego, Stargard, zachodniopomorskie
zaktualizowane:
18 grudnia 2020
Apartament, ul. Piłsudskiego
Zaktualizowane: 18 grudnia 2020
147 200 zł 30,98 m² 4 751,45 zł/m²
1/2
2
2020
-
do wykończenia
Zobacz na mapie
Piętro:
1/2Liczba pokoi:
2Rok budowy:
2020Miejsce parkingowe:
-Stan mieszkania:
do wykończeniaSzczegóły ogłoszenia
- Typ oferty: mieszkanie na sprzedaż
- Cena: 147 200 zł (4 751,45 zł/m²)
- Rynek: pierwotny (zobacz inne nowe mieszkania w Stargardzie)
- Forma własności: spółdzielcze własnościowe
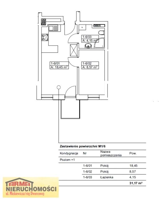
- Charakterystyka mieszkania: 30,98 m², 2 pokoje, 1 łazienka; stan: do wykończenia
- instalacje: nowe / wymienione
- Budynek: apartamentowiec; rok budowy: 2020
- Rozkład mieszkania: piętro 1/2, jednopoziomowe
- Powierzchnia dodatkowa: balkon, piwnica 3 m²
- Kuchnia: aneks kuchenny
- Media: ogrzewanie: miejskie, centralne ogrzewanie
- Bezpieczeństwo: drzwi antywłamaniowe
- Źródło: biuro nieruchomości: ARMA Nieruchomości STARGARDZKIE CENTRUM NIERUCHOMOSCI, zaktualizowane: 18.12.2020
- numer ogłoszenia: 3732/ARM/OMS
Oferta na wyłączność – nie szukaj dalej
Kupujący nie płaci prowizji
Lokalizacja
- Adres: Piłsudskiego, Stargard, stargardzki, zachodniopomorskie
- Otoczenie: osiedle domów jednorodzinnych
Opis nieruchomości
OFERTA BEZPOŚREDNIA - KUPUJĄCY BEZ PROWIZJI!
SPRZEDAŻ ROZPOCZĘTA!
Ładne, nowo budowane mieszkania na spokojnym osiedlu z pełną infrastrukturą.
Przekazanie mieszkania w standardzie deweloperskim, jedynie do wykończenia.
Ogrzewanie i woda z sieci miejskiej.
PROMOCJA! W cenie mieszkania piwnica (komórka lokatorska).
Proponowana oferta dotyczy mieszkania 2-pokojowego o pow. 30,98 m.kw. (...)


